How to move to an A-class office?

Right next to Riga’s historical centre, alongside Skanste a new urban district of New Hanza is emerging, designed to make everyone feel welcome and like they belong – whether at home, relaxing, or working.
At the moment most current project of New Hanza development is the new A-class office building at 1 Mihaila Tāla Street, located right next to the cultural venue centre Hanzas Perons. Construction works are carried out in accordance with BREEAM Excellent standards; project complies with the requirements for nearly zero-energy building and has already been recognised as the most sustainable project in the Baltics. The task of planning and moving to a new office requires a diligent approach in order for the transition to be considered successful. When searching for a new office premises, a multitude of questions might arise: How large should the new office space be? How complicated would the whole process be? How much time would it take? What costs should be taken into consideration? Will any extra investments be necessary for the office setup? And what is no less important: How will the employees feel regarding the move?
Elīna Ozola, Head of Sales and Lease Department at Pillar Capital, AS, provides answers to all these questions.
When is the office building expected to be put in operation and when will the tenants be able to settle in?
Most likely, we will be able to welcome our new tenants in the building in the summer of next year. Even though the New Hanza office building is planned to be put in operation by the end of March next year, the available office spaces will be without finishing. Premises in the new building are constructed according to the tenant’s requirements and needs, therefore, we must consider not only the time necessary to design the layout but also the time required for construction works, that may take up to four months. Therefore, if the layout, design, and other solutions that are important to the tenant will be agreed upon by the time the building is put in operation, office premises will be available to the tenant by the end of July.
How difficult is it to move to a new office? What time frame and costs should be expected?
It is important to understand whether the internal resources within company are sufficient to comprehend the current situation, predict the necessary number of workplaces, specify the needs of the new office, to research the market and organize the move. Not all companies have employees with previous experience in such matters. Quite often, the task of finding a new premises is entrusted to the office management or human resources, leaving the final decision making to the top management. As experience has shown, understanding needs, and finding a new office is a time-consuming process, usually we would advise to entrust this process to the industry specialists. We believe that as a developer we ought to provide clear and understandable layout solutions for premises and recommend reliable partners for more thorough research or best solutions upon such request.
At the moment office market in Latvia mainly offers ready-made offices with existing layout and finishing solutions. Usually tenants adapt to the premises by placing furniture accordingly. Often it takes up to 6 months from the moment of finding a more or less suitable premises until actually moving. The new A-class offices are more flexible and provide options for customisation of the layout according to specific requirements of the tenant, thus giving the opportunity to research and understand the needs of the team, also offering a better understanding about how the company will be able to work effectively in a hybrid model. Planning of new office takes time and attention that depending required office area and on availability of company resources can take up to a year. Even though that may seem like a long time it will definitely pay off in the long-run by lower office costs and higher wellbeing of the employees. It is important to emphasize that with professional support it is possible to significantly reduce this timeframe.
Our team has prepared a standardized office layout solutions that comply with the construction of fit-out standard included in the rent price – a specific amount and area of partitioning walls, number of doors, utility rooms and workplaces, amount of ventilation and conditioning systems. All costs relating to the construction of such standard fit-out are covered by developer. If the tenant requires additional design and construction solutions, incurring extra costs, we agree on best solutions during negotiations. Extra costs relating to the settling in the new premises such as moving of furniture and equipment depending on companies’ size should also be considered.
What are the benefits of an office in an A-class building?
One of the key advantages of an office in A-class building is the chance to reduce required office space per workplace, thus reducing costs per workplace. A-class office buildings where meeting and conference rooms are shared for common use for all tenants, tenants may significantly reduce rent costs, since there is no need to pay rent for area up to 50m2 depending on office space. In circumstances where most meetings are organized remotely meeting rooms are not always fully used according to the original objectives and cause unnecessary expenses.
I should also mention utility bills, that are significantly lower in A-class office buildings. To compare the energy efficiency of your current and potential office building, it is possible to request the energy efficiency certificates from the lessor or owner of the building. Energy efficiency certificates of the buildings constructed or renovated in recent years are publicly available. In the New Hanza office building, we aim at especially high energy efficiency level, that will be ensured by this building being a nearly zero-energy building and the fact that we have solar panels installed on the highest part of the building, meant to decrease maintenance costs of common use areas.
Currently we are receiving feedback from clients that it is challenging to maintain team spirit in a hybrid work regime when most of the employees chose to work from distance. A new office situated in a convenient and easily accessible location can provide extra motivation for employees to spend more time in the office, and provides advantages in attracting the best employees available in the market.
What else should be considered when comparing different options?
Rent per square meter and expected utility payments are not the only costs to consider whilst evaluating different offers of premises. It is essential to understand the calculation method for all these payments. In New Hanza offices additional fees for the common use lobby area, external walls, various additional rate multipliers for the use of shared premises are not applied. Standard finishing solutions provided by Lessor should also be reviewed to evaluate additional expenses that could arise during construction works of the premises. In the current market situation, when the construction costs are rising, in order for the premises to be equipped as planned, the tenant might unexpectedly be forced to cover the difference of the increased construction prices fully or partially even after signing the lease agreement. By choosing premises at the New Hanza office building tenants should not expect additional expenses if the offered layout solution, the amount of separating walls, glass walls and doors suit tenants needs and adjustments are not required. If tenant requires adjustments and that bare additional costs, for example larger amount of separating walls or different design solutions that exceed standard program, we negotiate regarding these costs before signing the Lease Agreement and additional costs are not expected during the construction process.
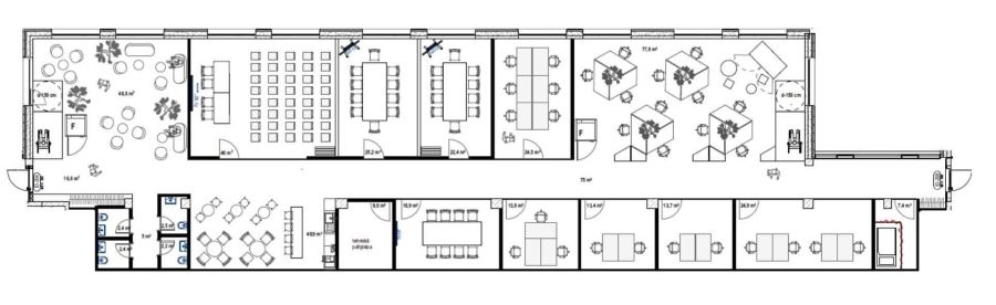
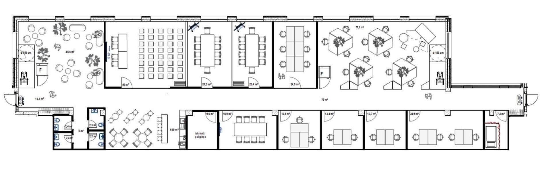
As mentioned co-working office premises with total area up to 500m2 will be available exclusively for use to tenants of New Hanza offices upon necessity. Premises will include conference hall, meeting rooms, open-space area, kitchen, lounge, and recreation area. Currently when planning the new office premises companies plan less workplaces than there are team members due to hybrid work model. Additional workplaces in open-space area of co-working office help to adjust to situations where more employees arrive in the office than there are equipped workplaces.
How the employees might take the news about moving?
Moving to a new office has always been a sensitive matter from the point of view of the team – there will always be team members supporting the move and there will also be those who will not be thrilled about it. During the time when A-class buildings were less available and there were little options to choose from, management paid little attention to the preferences of the team and very often explanation was not properly executed. In the short-term that had an impact on the team’s mood and might have created negative attitude towards the process. Nowadays teambuilding and strengthening issues have become especially important and we see that management is open towards including team in the decision-making process. Questions like how convenient the commute is, location of nearest public transport stops, parking options near office, how will location of new office affect the daily routines of the employees, how far are kindergartens, schools, and after-school activities of their children located are carefully considered. Companies strive to reach synergy in the moving process to the new premises, respecting the wellbeing of the employees. Larger organizations can coordinate this process more successfully, since they can dedicate extra time and financial resources for this process; however, we have observed that also smaller businesses consider this. It is not a secret that, currently there is a lack qualified workforce in all industries and the biggest winners in the labour market will be employers who listen to employees and take their preferences into consideration. If the decision about moving has already been made and it is safe to disclose this information, it is advisable to take time to properly communicate the benefits of the move to the employees.
What is the expected term of the lease agreement?
The goal of every lessor of an office building is to establish long-term relationships with the tenants. Since we invest in the interior design of the offices, we aim to form lease relationships of at least 5 years. As the New Hanza territory develops, construction of more office buildings is planned, where tenants will have the opportunity to expand or exactly the opposite – optimize the leased area, moving to new spaces within the New Hanza territory.
Why should you choose New Hanza offices?
Primarily, it is the location. The access to New Hanza is convenient by both public transport and private vehicles, that can be comfortably parked in the spacious parking near office building. Nearby there are various catering services for different tastes, educational facilities, shops and the port in direct proximity of the office building.
Financial benefits are also a factor, because New Hanza offices have one of the best deals in the market for buildings of such quality. I would also like to emphasize the environment where potential tenants of New Hanza offices will be able to fit in and position themselves as successful, development-oriented companies. The New Hanza territory is becoming a completely new urban environment that will remain relevant in the upcoming years, staying in the centre of current information.















